[실무 툴] 호퍼 탱크 용량 & 중량 자동 계산기 (사각뿔대 부피 공식 해설)
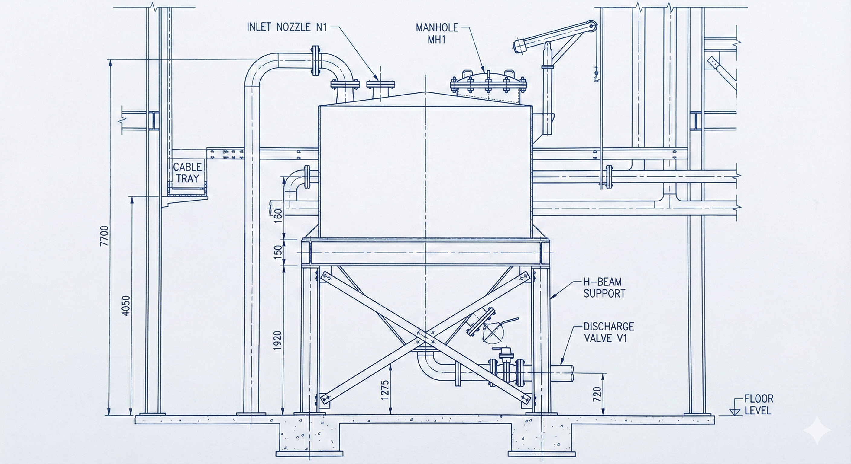
현장에서 설비 설계를 하거나, 공정에 투입될 원료 탱크의 용량을 산출할 때 가장 번거로운 형태 중 하나가 바로 '호퍼(Hopper)' 타입의 탱크입니다. 원통형이나 단순 직육면체와 달리, 하부로 갈수록 좁아지는 형상은 계산기를 두드리기 귀찮게 만들죠.
단순히 부피(Volume)만 안다고 끝이 아닙니다. 내부에 들어갈 액체의 비중(S.G)을 고려하여 탱크가 견뎌야 할 총 하중(Weight)을 계산해야만 구조적인 안전성을 확보할 수 있습니다. 오늘은 이 계산 과정을 자동으로 처리해주는 웹 계산기와 그 뒤에 숨은 수학적 원리를 정리해 드립니다.
1. 호퍼 탱크의 기하학적 구조 이해
대부분의 사각 호퍼 탱크는 기하학적으로 두 가지 도형의 결합입니다. 상부는 반듯한 직육면체(Rectangular Prism)이고, 하부는 아래로 갈수록 좁아지는 사각뿔대(Frustum of a Pyramid) 형태를 띠고 있습니다.
따라서 전체 용량 $V_{total}$은 상부 부피 $V_1$과 하부 부피 $V_2$의 합으로 계산됩니다.
상부 직육면체 부피 ($V_1$)
이 부분은 간단합니다. 가로($A$), 세로($B$), 그리고 직관부의 높이($D$)를 곱하면 됩니다.
$$ V_1 = A \times B \times D $$
하부 사각뿔대 부피 ($V_2$)
여기가 조금 까다롭습니다. 호퍼 부분의 높이를 $h$라고 하고, 상부 단면적을 $A_{top}$, 하부 배출구 단면적을 $A_{bot}$이라고 할 때, 공식은 다음과 같습니다.
$$ V_2 = \frac{h}{3} (A_{top} + A_{bot} + \sqrt{A_{top} \cdot A_{bot}}) $$
이 복잡한 공식을 매번 엑셀에 넣거나 공학용 계산기로 두드리는 것은 비효율적입니다. 아래 계산기를 통해 도면 치수만 입력하여 즉시 결과를 확인해 보세요.
2. 호퍼 탱크 용량 자동 계산기
아래 입력란에 설계 도면상의 치수(mm)를 입력하세요. 부피(Liter, $m^3$)와 액체 비중을 고려한 총 중량(kg)이 실시간으로 산출됩니다.
🧪 호퍼 탱크 용량 계산기
도면 치수를 입력하면 용량과 무게를 자동 계산합니다.
📏 치수 입력 (mm)
📊 계산 결과
3. 실무 적용 시 주의사항
계산된 값은 '이론상 내부 용적'입니다. 실제 제작 및 운용 시에는 다음 사항을 반드시 고려해야 합니다.
3.1. 여유율(Margin) 확보
탱크를 100% 가득 채우는 경우는 드뭅니다(Overflow 위험). 통상적으로 설계 용량의 85~90%를 운전 용량(Operating Volume)으로 잡습니다. 위 계산기에서 나온 결과값에 0.9를 곱해 실제 가용 용량을 판단하세요.
3.2. 비중(Specific Gravity)과 구조 계산
물(비중 1.0)을 담을 때와 황산(비중 1.84)을 담을 때, 탱크가 받는 하중은 거의 2배 차이가 납니다. 위 계산기에서 [액체 비중] 항목을 정확히 입력하여, 지지대(Support Leg)나 앵커 볼트가 견딜 수 있는 무게인지 확인해야 합니다.
'기술 자료' 카테고리의 다른 글
| 반도체, 단순한 부품을 넘어선 첨단 산업의 심장: 원리, 역사, 그리고 설계의 모든 것 (95) | 2025.09.21 |
|---|---|
| 당신의 티스토리 블로그를 확 바꿀 3가지 HTML 꾸미기 소스 (45) | 2025.09.19 |
| CAD 실기 합격의 지름길, KS 규격 핵심 콕콕! (1편: 끼워맞춤, T홈) (60) | 2025.09.19 |
| 기초 역학 마스터: 힘, 모멘트, 응력, 변형률 완벽 가이드 (42) | 2025.09.18 |
| 꿈의 배터리, 전고체 배터리의 모든 것: 현황, 과제, 그리고 미래 (46) | 2025.09.15 |


